10坪2口

DATA
- 2 口之家(40 世代後半的夫妻)
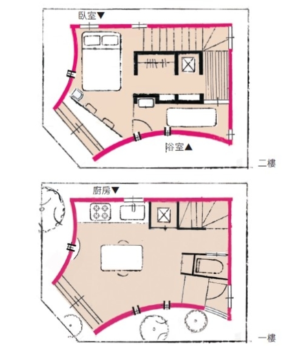
- 10.5 坪(35m2) 1 房 1 餐廳 1 廚房(餐廳廚房 4 坪+臥室 3 坪)
- 屋齡 3 年(居住 3 年)
- 透天厝(自有住宅)
- 東京都港區
- 徒步至車站 5 分鐘
只帶真正需要、真心喜歡的物品搬進新家
大房子只會讓人囤積多餘雜物
女主人笑著說:「這間房子是我們蓋的,但沒想到蓋出來的房子比之前住過的家更小。
一樓與二樓的空間加起來只有十點五坪左右,大概是學生套房的兩倍大。」夫妻兩人興趣廣泛,在最初十三坪的房子裡設置了 DJ 臺,還有完整的音響設備,並非完全極簡主義的作風。後來租房子住,捨棄了一些東西,只帶真正需要、真心喜歡的物品搬進新家。「那是我們用心打造的房子,所以我們只想帶著有紀念價值的物品搬進去。下定決心後,開始整理物品,不過整理過程十分輕鬆。因為我們家沒有藏東西的死角,也沒有用來堆雜物的閒置空間。住在狹小空間裡,自然有所覺悟,於是帶著玩遊戲的心情挑選留下來的物品。」
不以哪些東西要丟掉為標準,從要帶哪些東西到新家的觀點選擇,自然就能汰除不要的雜物。飯島家也跟本書其他家庭一樣,刻意選擇的小屋生活昇華了他們與物品的相處關係。
「即使像現在收納空間這麼少,也沒地方堆東西,還是會有用不到的雜物,或忘記自己有而重複購買的用品。我們住在這麼小的家,還能選出這麼多東西丟,可以想像如果住在擺得下很多雜物的大房子,我一定不清楚自己有多少東西。」
這個家最大的課題就是確保收納空間。
階梯踏板下全都做成收納空間,放入捲筒衛生紙、熨斗、文庫書等大量雜物,關上拉門就能隱藏生活感。


家裡不需備齊所有物品
善用外界資源,小房子也能過得富足
男主人說:「人的慾望無限,永遠沒有盡頭。不管住在多大的房子裡,都會希望住更大的房子。當家裡有地方堆東西,看到什麼就想買什麼,也覺得自己需要。不過,每天思考該如何享受這有限的空間,才是一大樂事,你說對不對?」
從現實面來看,十點五坪的透天厝有其極限,不可能實現所有夢想。遇到必須取捨的時候是否能轉念,便成為能否度過快樂生活的分水嶺。
「過去我一直住在小房子裡,蓋了房子後,我想在家放沙發。不過,畢竟家裡只有十點五坪,最後還是沒放。我轉念一想,只要去擺放舒適沙發的咖啡館,還是可以坐在沙發上休息。住在都心就是有這個好處,家附近就有雅緻的咖啡館,飯店也有可供大眾使用的休閒空間。」
想讀書就去圖書館,想一個人獨處就窩在車裡,或到旅館住一晚。從車站到家裡的綠色道路,就當成自家門前的引道。善用都會生活的優點,盡情利用街上的設施,讓外面的世界成為家的延伸,因此無須在家中備齊所有物品。從這個角度思考,住在十點五坪的家也能感到舒適自在,飯島夫妻的生活讓我們深刻感受到這一點。

「我是以露營帳篷為概念來打造自己的家。帳篷的內部空間很小,放得下的東西有限,如有任何需求便善用外界資源。我家就像帳篷一樣,想要放鬆就到附近溫泉泡湯,想看景色就走出戶外,呼吸新鮮空氣。我跟老公去看電影《借物少女艾莉緹》時,他還驚呼地說:『我們應該向她學習!』
電影主角艾莉緹若有需求便向人類『借』自己需要的物品,我們也可以靈活運用公共設施,豐富自己的生活。自從住在這裡之後,我們的想法改變了,無論是用品或空間都要與大家共享。」
為了讓鄰居或行人感到舒適,蓋房時打造能與四周綠樹相互輝映的外觀,儘管房子很小,卻在房子四周擺滿盆栽。走進玄關就會看到餐廚空間,很適合邀請親朋好友來家裡玩。
「曾有鄰居跟我說:『每次回家途中看到你家就覺得很放鬆,謝謝你蓋了一間這麼漂亮的房子。』朋友的小孩還跟他媽媽說:『今天我去了一棟童話故事裡才有的房子玩,那棟房子感覺很像玩具,我在那裡玩得好開心喔!』外界事物也經常給我們許多刺激與方便,所以我家的風景、房子也要跟附近鄰居和朋友分享。我就是以這樣的態度看待自己的家。」


不想住在自己天馬行空打造出來的家,因此委託「NIKO 設計室」設計房子。顏色搭配跳脫框架,二樓牆面漆上粉紫色,與藍色床罩形成強烈對比,營造時尚感。
為了不破壞廚房的帥氣風格,選擇將冰箱隱藏起來。打開廚房旁邊的門就會看到冰箱。餐具收納在冰箱旁邊,充分活用樓梯下方的空間。

本文摘自采實文化《選擇住在小房子:小卻剛剛好,實踐簡單、自在、滿足的生活,我的小屋快樂哲學》
【更多資訊請上《采實文化》粉絲團:未經授權,請勿轉載!》




留言評論