調整不良房屋體質6大關鍵-破除不當格局,光線和風都湧進
Q3
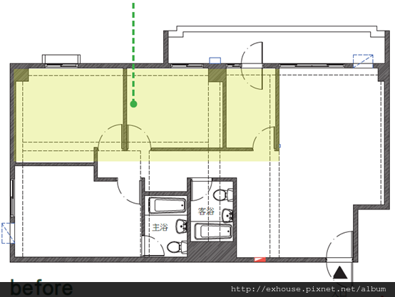
30年的老屋,不但屋高不高,通風採光都不好,讓空間更顯壓迫,要怎麼解決?
將封閉的廚房格局拆除且移位至牆邊,藉此解決了遮光的牆,再配合半高牆與玻璃窗迎入採光與景觀。虛化一房隔間改為拉門,讓空間更開闊。
問題1 隔間太多,遮蔽光線
由於採光區域正好有三房格局和廚房遮擋,封閉式的設計使光線都無法進入室內。
破解1 拆除廚房牆面,改以玻璃牆區隔
把餐桌旁封閉廚房牆面拆掉後,搭配L 型玻璃牆與空間擴建,讓採光可順利進入公共區。
破解2 一房牆面改拉門,空間變大更明亮
原本廚房旁的房間拆掉固定牆面,改用活動式拉門做隔間,讓書房納入公領域的視野,並使走道歸零、空間感變大。
<更多詳細內容>








留言評論